More Comfort Efficiency Sustainability In every prefab
What are Kit-Homes?
Kit homes, also known as prefabricated homes or modular homes – like a super sized ikea kits, offer convenience, affordability, and efficiency. The components or ‘Panels’ that make our kit-homes are designed and manufactured in a factory setting, ensuring minimal waste, attention to detail and quality control. The modules, finishes, fixtures and fittings are then securely packed in a container and shipped to the desired location, where they are able to be quickly and efficiently assembled on-site. This process simplifies the construction process and significantly reduces time on site compared with traditional building methods.
Why a Kit-Home?
The primary advantages of modular kits are their rapid construction and cost-effectiveness. By streamlining production and minimizing on-site labour, we can offer pre finished building kits at a lower price points without compromising quality.
Kit homes are able to cater to a wide range of needs, from single granny flats, to entire towns. Our capacity and logistics network make Vfab kits ideal for various markets, including residential customers, government projects, and specialised sectors such as aged care, disability accommodation, and mining camps. This versatility makes our building kits a practical and attractive option for Australians seeking modern affordable construction solutions.
Better design from Award Winning Architects
VFAB kits are crafted ensuring that each design is not only stylish and modern, but functional and easy to construct. Our design team bring decades of experience and creativity to our projects, delivering that premium architecturally designed feel, at an affordable price point.
Designed for Sustainability
Depending on site location and orientation, Vfab kits can achieve up to a seven-star energy rating and are compliant with the New South Wales BASIX system. Our kits meet the most stringent energy efficiency standards and can be used with off-grid battery and solar packages. Each unit features low-E double-glazed windows and is insulated to withstand Australia’s toughest environmental conditions. By choosing a VFAB kit, you are contributing to a more sustainable future while enjoying lower energy bills and a more comfortable living experience.
Designed to exceed Australian Standards
We prioritise quality and compliance. Our kit homes are made for distribution nation-wide, that means they meet the standards for Australia’s toughest conditions. Built from AS compliant steel with standard features like C3 cyclonic rating and adaptable footing designs for even the most demanding site conditions, your kit is safe, durable, and designed to last.
Designed for rapid assemmbly
Our modular construction methods significantly reduce on-site building time to less than a week for most builds. This efficiency does not compromise on quality, as each module is precision-built in our controlled factory environment. Once your kit is on-site, you’ll be able to move in within days – not months.
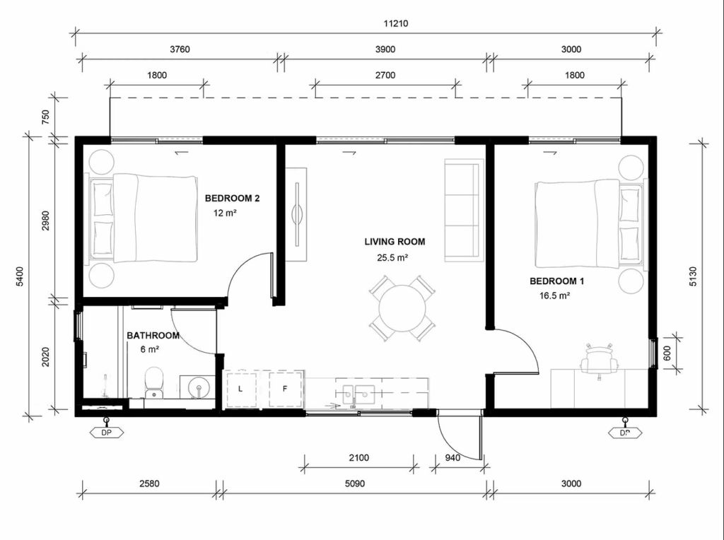
The Lodge: 2 Bed
Granny Flat
2Gross Floor Area (m2): 60
Living & Kitchen (m2): 25.5
Bedroom 1 (m2): 16.5
Bedroom 2 (m2): 12
Structure
Steel beams with lightweight steel floor joists Walls: Lightweight steel frames with hot rolled steel structural columns
Roof: Lightweight steel frames
Flooring
General: Timber-look composite hybrid flooring Bathrooms: Vitrified porcelain tiles
External Deck: Not Included
Walls
External: Painted fibrous cement panels Internal: Composite non-combustible decorative panels
Bathroom: Vitrified porcelain tiles and painted fibrous cement panels
Roofing
Colorbond equivalent corrugated steel Accessories Colorbond equivalent gutter, capping/flashing
Ceilings
General: Composite non-combustible decorative panels Bathroom: Painted moisture resistant plasterboard
Joinery
Joinery Carcass: Melamine boards
Joinery Panels: Timber-look laminate boards Bench tops: Zero silica composite stone
Windows
Double-glazed powder coated aluminium windows with flyscreens
Doors
External: Double-glazed powder coated aluminium doors
Fixtures and Fittings
Powdercoated brass door hardware Powdercoated brass bathroom fixtures Stainless Steel under-mount double-bowl sink Ceramic top-mounted bathroom basin Wall-faced porcelain toilet pan
Tour The Lodge and Watch It Come to Life
The building process should be easy...
Unfortunately, in Australia it isn’t always. That’s why with our delivery partners we’ve worked to simplify the complex process of achieving approval and occupancy certificates Australia-wide with our Approval Assistance Service.
Through our Approval Assistance Service, we deal with the red tape to get you building faster with confidence.
Your New Home Starts Here!
Our signature tiny home is ready for fast delivery, easy setup, and beautiful living.







